Select Language
Afrikaans
Albanian
Arabic
Armenian
Azerbaijani
Basque
Belarusian
Bulgarian
Catalan
Chinese (Simplified)
Chinese (Traditional)
Croatian
Czech
Danish
Dutch
English
Estonian
Filipino
Finnish
French
Galician
Georgian
German
Greek
Haitian Creole
Hebrew
Hindi
Hungarian
Icelandic
Indonesian
Irish
Italian
Japanese
Korean
Latvian
Lithuanian
Macedonian
Malay
Maltese
Norwegian
Persian
Polish
Portuguese
Romanian
Russian
Serbian
Slovak
Slovenian
Spanish
Swahili
Swedish
Thai
Turkish
Ukrainian
Urdu
Vietnamese
Welsh
Yiddish
Edifícios no centro de São Paulo
O projeto
Pesquisadores
A arquitetura do centro
Artigos
Termos de Uso
Contato
Menu
O projeto
Pesquisadores
A arquitetura do centro
Artigos
Termos de Uso
Contato
Compartilhar
modal
Compartilhar por E-mail
Seu Nome
Seu E-mail
Nome Destinatário
E-mail Destinatário
Observação
Enviar
Artigos
Uma operação imobiliária no Centro Novo de São Paulo: a Rua Marconi
Detalhe
Uma operação imobiliária no Centro Novo de São Paulo: a Rua Marconi
Autores
Marcos José Carrilho
Alessandro José Castroviejo Ribeiro
Cecilia Helena Godoy Rodrigues dos Santos
Introdução
A origem da cidade de São Paulo remonta as primeiras iniciativas portuguesas de estabelecimento no território brasileiro. Conforme a tradição do urbanismo português, sua fundação se deu a partir da escolha de um sítio com características defensivas, numa colina elevada entre o Rio Tamanduateí e o Córrego do Anhangabaú. Por três séculos São Paulo permaneceu circunscrita aos limites dessa colina. Apenas na segunda metade do século XIX, a cidade ultrapassaria o vale do Anhangabaú para dar origem ao chamado “Centro Novo”.
Até então esta área era atravessada por caminhos de circulação tais como a Rua da Consolação, em direção à aldeia de Pinheiros ou a Rua de São João, estrada que prosseguia para Campinas e daí, em direção ao sertão do Mato Grosso. Apenas algumas outras ruas se encontravam abertas como a Rua Formosa, paralela ao vale do Anhangabaú e a Rua da Palha, depois Sete de Abril, que tinha origem na confluência das vias que transpunham o córrego alcançando, mais adiante, o Largo dos Curros. Nos limites do polígono por elas formado, encontrava-se a Chácara do Chá, cujo proprietário, o Barão de Itapetininga, havia resistido a todas as iniciativas de seu parcelamento, o que ocorreu somente após sua morte em 1875.
A chegada da ferrovia, associada a expansão da fronteira agrícola constituíram os fatores impulsionadores das transformações que alteraram o perfil da cidade. Em pouco mais de duas décadas a área da antiga Chácara do Chá seria inteiramente ocupada. Apesar dos novos padrões de edifícios que acompanharam esta transformação, o parcelamento fundiário então implantado ainda conservava os padrões do urbanismo de tradição luso-brasileira, composto de lotes estreitos e profundos.
As primeiras hipóteses de parcelamento da Chácara do Chá aparecem registradas em uma planta de 1868
[1]
. Contudo, a proposta de parcelamento esboçada nesta planta não se realizou inteiramente como previsto, dando origem a um sistema de circulação orientado predominantemente no sentido Leste-Oeste, e a quadras muito alongadas, especialmente entre as ruas Sete de Abril e Barão de Itapetininga.
No início do século XX, a hegemonia da economia agrícola começou a ser alterada pela nascente produção industrial. A pressão do desenvolvimento urbano da cidade prosseguiu neste período, dando origem a novos padrões de edificações, realizadas por meio da incorporação de vários lotes em um único empreendimento.
No período entre guerras, o dinamismo econômico da cidade se intensificou com a crescente predominância da atividade industrial e a economia se diversificava com o surgindo novos polos de investimento como o setor imobiliário. A construção civil assimilava avanços tecnológicos com o pleno domínio da tecnologia do concreto armado e da infraestrutura de instalações. Estava em curso a implantação do “Plano de Avenidas” e a realização dos “Melhoramentos da Cidade de São Paulo”, formulados por Francisco Prestes Maia.
A abertura da Rua Marconi e seu projeto
Walter Seng, médico de origem húngara radicado em São Paulo, possuía uma propriedade constituída de vários lotes, que se estendiam da Rua Barão de Itapetininga à Rua Sete de Abril. Em meados de 1930, seus herdeiros, propuseram à municipalidade a doação de uma faixa de terreno para abertura de uma via pública em continuidade à Rua Bráulio Gomes. Por meio do Ato nº 1.152 de 6/7/36, o Prefeito Fábio Prado aprovou a abertura da rua. Em 1938, foi “entregue ao trânsito público (...) a Rua aberta entre Barão de Itapetininga e Sete de Abril pelos herdeiros de W. Seng”.
[2]
A realização deste projeto não é inédita, pois havia o precedente do Edifício Esther, cujo projeto previa a abertura de uma via pública, proporcionando quatro faces livres para o edifício principal e, na área remanescente, a construção de segundo edifício. Esta alternativa potencializou o empreendimento, gerando altos índices de aproveitamento da área.
Assim, em lugar de um único edifício ou dois, com as faces principais voltadas para os logradouros públicos, a abertura da Rua Marconi permitiu parcelar a área sendo obtidos 14 lotes de menores dimensões, porém com grandes frentes voltadas para a via pública.
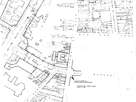
Além das evidentes vantagens sob o aspecto imobiliário, a documentação levantada revelou a existência concomitante de um projeto urbanístico associado à Rua Marconi, cuja continuidade foi estendida até a Rua São Luís. O prolongamento da via foi feito mediante seu alargamento, realizado com duas pistas e canteiro central, acrescido de outra ampliação na confluência da Rua São Luís, também ela transformada em avenida (Figura 1). As diferenças sucessivas de dimensões do leito da via, associadas às massas edificadas então previstas proporcionariam variações de perspectiva e de planos de enquadramento orientados na direção da via recém-aberta, a Rua Marconi. A regulamentação proposta, por sua vez, não se limitou a um único logradouro, mas foi generalizava para as principais ruas do Centro Novo, de acordo com o Ato nº 1366 de 19 de fevereiro de 1938 (modifica o Art. 181 do Ato 663, de 1934).
Figura 1 – projeto do prolongamento da Rua Bráulio Gomes - Fonte:
As normas definidas estipulavam que os prédios deveriam ter, “no alinhamento destas vias altura correspondente a dez pavimentos de três metros de pé-direito, exclusive os térreos (lojas, rés do chão e embasamento) ”
[3]
. Acima desta altura, era necessário atender ao artigo. 145, do Ato 663, de 1934, que regulava o escalonamento progressivo. Esta possibilidade de prosseguir a construção com recuos sucessivos não poderia ultrapassar a altura máxima de cinquenta metros, determinados a partir da altura de décimo pavimento, ficando as partes mais altas contidas sob linha que liga a intersecção do alinhamento oposto com a horizontal da guia do passeio ao ponto mais alto permitido no alinhamento das vias públicas do prédio a construir. Tais parâmetros propiciaram considerável aproveitamento imobiliário, multiplicando em cerca de 10 vezes a área dos lotes.
O Artigo 2º, do Ato nº 1366, acrescenta, ainda, que os lotes de menos de vinte metros de frente, nas ruas Xavier de Toledo e Marconi, deveriam ter suas fachadas subordinadas “às linhas arquitetônicas de um dos prédios contíguos, a juízo dos Departamentos de Obras e Serviços Municipais; de modo a formar um único conjunto arquitetônico”.
Desta maneira, a concepção de conjunto já nasce regulada por uma legislação formalmente definida, que sublinha o controle de formas desenhadas pela volumetria resultante do alinhamento e do limite de altura das construções na testada do lote. Os recuos sucessivos a partir do dos onze pavimentos (térreo + dez pavimentos) não alterariam a configuração desejada, sobretudo do ponto de vista do observador que percorre a rua.
Figura 2 – “Projeto de Gabarito de Alturas para a Rua Marconi” – desenho associado a projeto de Jacques Pilon – Fonte: IPHAN, levantamento de edifícios modernos no Centro Histórico de São Paulo
Verifica-se assim, em contraste com o paradigma dos edifícios como volumes autônomos propugnado pelo Movimento Moderno, que a característica marcante do desenvolvimento desta área foi a constituição de uma morfologia contínua e sem elementos destacados. Embora tal configuração possa admitir variações formais e estilísticas de cada um de seus elementos, alcança uma grande unidade de conjunto, graças à superfície contínua dos edifícios e o mesmo limite de altura. As quadras assim formadas, compõem blocos cujas faces externas se apresentam, de modo geral, inteiramente preenchidas. Para proporcionar condições adequadas de iluminação e ventilação, o interior das massas edificadas é perfurado por poços de ventilação ou pátios internos. Surgia, desse modo, uma modalidade de adensamento da região central baseada no desenvolvimento vertical, mas com limites que a aproximam mais dos padrões de Chicago que daqueles desenvolvidos em Nova York.
[4]
Os edifícios
Esta característica de conjunto se estende à expressão formal dos edifícios. A evidência mais destacada desta preocupação se manifesta na confluência da Rua Marconi com a Sete de Abril. A forma dada aos edifícios Santa Leonor (1938 -1940) e Ângela Loureiro (1939-1940) ali realizados, parece sugerir obra de um mesmo autor, dada a sua semelhança. Isto, contudo, não ocorreu, pois o primeiro foi construído pela empresa Richter e Lotufo e o segundo pelo escritório Severo Villares. Apesar das diferenças de dimensões dos terrenos e mesmo de altura dos volumes, seus responsáveis buscaram estabelecer uma relação de intensa harmonia formal entre as duas obras, por meio movimento das linhas horizontais enfatizado pelas curvas de concordância das esquinas, repetidas de ambos os lados. Em contraponto, linhas verticais percorrem toda a extensão dos volumes, demarcando a porta de entrada da rua (Figura 3). Não bastasse esta intenção, outro edifício, situado na Rua Bráulio Gomes, na confluência da Rua Sete de Abril, mimetiza o mesmo tratamento, o que parece reafirmar a intenção estética do projeto urbano atrás mencionado.
Figura 3 – Rua Marconi na década de 1950 – Cartão Postal Foto Labor
Na esquina oposta, as curvas de concordância voltam a participar dos volumes edificados, tendo sido repetidas as linhas horizontais dominantes nas fachadas do edifício
São Manoel
, não estando de todo ausentes, na face oposta, no edifício Walter Seng. Neste caso, porém, ficaram subordinadas a uma composição de clara ênfase vertical, acentuada sobre o pórtico de acesso, que comparece na composição repetindo o mesmo expediente formal assinalado na Rua Sete de Abril, tema esse, aliás, recorrente em outros exemplares.
Todos os edifícios situados na face sudeste da Rua Marconi também foram tratados com a predominância de linhas horizontais, ocorrendo em alguns casos a marcação vertical, mas apenas em contraponto, para acentuar o pórtico de acesso no eixo principal, como no Edifício São João. Este tratamento não está ausente da face oposta, nos edifícios Francisco Coutinho (1938 -1939), Marconi e Anchieta, mas, neste caso, há duas bruscas diferenças correspondentes aos edifícios Ernesto Ramos (1941-1944) e Anhumas (1938-1940), cuja expressão formal se afasta das linhas simples e modernizantes, para reencontrar referências à tradição clássica no caso do primeiro, e a ambiguidade de uma malha abstrata, como molduras de planos reentrantes, no caso do segundo. Estes últimos, cujas características formais escapam da unidade do conjunto, são projetos do arquiteto Jacques Pilon, autor de dois outros que, contudo, mantêm correspondência formal com os demais: os edifícios
São Manoel
(1937-1939) e Francisco Coutinho.
Figura 4 – Vista da Rua Marconi – Fotografia de Gabriel Zelauai – Fonte: Acervo Fotográfico do Museu da Cidade de São Paulo – 1940
Se existem variações na linguagem dos edifícios, quanto a suas linhas de forças, horizontais ou verticais, não há grandes variações em relação aos aspectos técnicos e em relação aos processos construtivos utilizados. Todas as obras foram realizadas com o sistema de estrutura de concreto armado, cuja técnica já se encontrava amplamente sistematizada, a partir das experiências desenvolvidas na década de 1920. Mas se o domínio técnico da estrutura autônoma não constituía dificuldade, sua utilização ainda se encontrava subordinada aos aspectos construtivos de sustentação e à subdivisão interna dos edifícios, não tendo adquirido ainda autonomia para participar da expressão plástica das obras realizada. Não obstante, sua versatilidade já oferecia a oportunidade da exploração de elementos em balanço e a eliminação de cunhais, como demonstram os cantos encurvados atrás referidos.
Desse modo, as alvenarias de fechamento continuam a ter papel relevante na expressão dos volumes arquitetônicos. Em consequência, o revestimento das superfícies também tem papel destacado em cada uma das obras, contribuindo para a unidade do conjunto, pelo tratamento de pormenores das bossagens, de marquises, platibandas, frisos, cornijas e de grandes superfícies, com uso recorrente de argamassas mistas de mica ou pó de mármore, em alguns casos reproduzindo texturas de materiais. Disso resultam edifícios bem construídos, com acabamentos nobres, sobretudo no embasamento, atendendo, da mesma forma, os requisitos do Código de Obras “Arthur Saboya”.
A organização dos edifícios de escritórios
Esta condição de relativa homogeneidade do conjunto decorre de outros fatores não menos relevantes, entre os quais despontam a finalidade comercial, o mesmo uso para todos os edifícios, as formas de organização semelhantes e sua construção quase simultânea, realizada em pouco mais de 5 anos.
A organização do pavimento tipo e a subdivisão em salas de pequenas dimensões revelam o público a que se destinam estes edifícios. Embora as características formais e estilísticas os aproximem de exemplos análogos de origem norte-americana, a escala e as dimensões das salas de escritórios indicam um padrão bem mais modesto. Em contraste com o sistema “
T-shape
”
[5]
, que compreende a associação de salas de escritório e antessalas para funcionários de apoio, no caso dos edifícios da região central de São Paulo, comparecem sempre e invariavelmente salas singelas, delimitadas pelos corredores de acesso. No caso de escritórios de maior porte, os funcionários se distribuiriam em salas contíguas, integradas por portas, deixando de ocorrer distinção hierárquica sob o aspecto espacial, variando, possivelmente, a ocupação das salas dedicadas a maior número de funcionários, porém sem distinção de dimensões. Da mesma forma, as instalações sanitárias não apresentavam nenhuma forma de diferenciação entre usuários, salvo eventual separação por sexo.
A organização espacial dos edifícios não apresenta variações significativas. No rés-do-chão, acham-se as atividades comerciais, lojas e sobrelojas, e os vestíbulos de acesso aos pavimentos superiores, constituídos de salas de escritórios, corredor de circulação e instalações sanitárias.
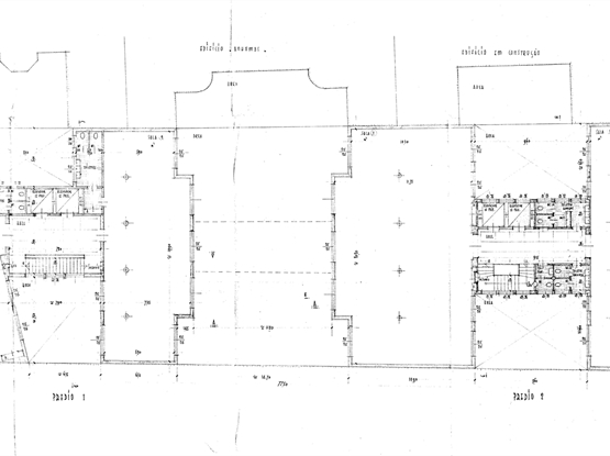
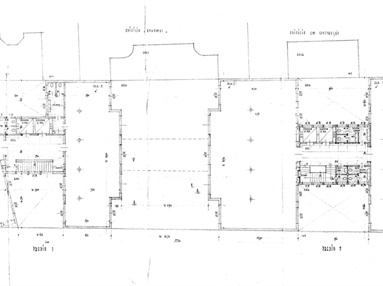
A distribuição interna assume formas recorrentes e algumas destas partes, como a circulação vertical, seguem um padrão: dois elevadores conjugados à uma escada. Esta disposição é organizada segundo três variantes distintas: uma caixa de escada ladeada por dois elevadores, dois elevadores contíguos – esquema predominante –, seguidos da caixa de escada na mesma linha e, por fim, o esquema em que a escada se encontra separada pelo hall, diante dos elevadores. Na maioria dos casos, o conjunto composto pelos elevadores e caixa de escada situam-se na área central do edifício, enquanto apenas dois deles apresentam a circulação junto à divisa lateral do terreno (Figura 5).
A circulação vertical define e organiza o pavimento tipo de maneira característica, por meio de um corredor, paralelo ao alinhamento frontal, ao longo do qual se distribui o maior número possível de salas, de modo a desfrutar a melhor condição iluminação e ventilação. Esta disposição permanece a mesma nos de lotes de esquina, onde as fachadas se dobram para alcançar as demais salas. Quando voltadas para o interior do lote as salas também se distribuem ao longo destes corredores, dos quais também surgem extensões para permitir sempre o máximo aproveitamento possível.
Aos corredores e respectivos halls encontram-se associados os sanitários, ora nas extremidades, ora no centro, geralmente dois por andar. Esta configuração reduzida de sanitários de uso coletivo é comum a todos os edifícios estudados na Rua Marconi, como de resto nas demais obras do período.
Figura 5 – esquema dos pavimentos-tipo dos edifícios. amarelo: salas de escritórios; vermelho: circulação; azul: instalações sanitárias.
A disposição dos poços de iluminação e ventilação apresentam poucas diferenças. Dos treze edifícios erguidos na Marconi, nove tem seus poços principais centralizados na parte posterior dos lotes. Três outros situam-se junto aos vértices das divisas dos fundos. Destas disposições decorrem duas volumetrias básicas: a primeira, em forma de “U”, que poderia ser decomposta em um corpo alinhado à divisa frontal do terreno, e dois outros, perpendiculares a ela, com aberturas voltados para o poço central; a segunda, em forma de um “T” tem também um corpo alinhado à divisa frontal e o segundo centralizado rumo aos fundos do lote, do que resultam dois poços. Apesar das diferenças de organização dos edifícios de esquina o padrão persiste com pequenas variações, correspondentes à forma em “U” no Ângela Loureiro e
São Manoel
. A exceção fica por conta do Santa Leonor, composto por uma única volumetria.
As salas de escritórios situadas nestes poços de ventilação encontram-se, em sua maioria, confinadas entre as paredes limítrofes, tendo como vista apenas as salas contíguas. Algumas destas situações conheceram respostas mais cuidadosas, buscando ampliar os limites destes pátios, como o demonstra o projeto que Jacques Pilon realizou para o edifício da família Silva Prado, contíguo à face noroeste da Rua Marconi, fazendo coincidir os pátios internos do novo edifício aos pátios pré-existentes dos Edifícios Walter Seng, Anhumas, Anchieta e Marconi (Figura 6).
Figura 6 – Projeto de edifício de escritórios para os Srs. Caio e Antonietta da Silva Prado – arq. Jacques Pilon, notar a concordância dos pátios de iluminação e ventilação fonte: IPHAN/SP
O tamanho das salas dos escritórios constitui outra característica comum aos edifícios estudados, cuja média oscila em torno de 17 m². Apesar de dimensões muito reduzidas, estas salas poderiam ser conjugadas, por meio de portas internas de interligação. Entre a documentação reunida foi encontrado um projeto não realizado do arquiteto Rino Levi para terreno da Sra. Mercedes Seng. Este documento oferece algumas informações relevantes. Além da proposta arquitetônica, o autor indica o desempenho da solução proposta: área construída, área locável e a porcentagem entre elas: 69,3%. Tais números sugerem que, além da qualidade arquitetônica, a quantidade de espaço resultante para a finalidade comercial constituia fator decisivo ao bom resultado do projeto.
[6]
O projeto proposto por Rino Levi alcançava o número de 9 salas no pavimento tipo. A proposta construída do Edifício Mercedes, elaborada pelo escritório Severo Villares, alcançou 12 salas, número que pode ter sido o fator de escolha do projeto realizado. Assim, não é estranho constatar os altos índices de aproveitamento destes imóveis, em torno de 9,30 e a altas taxas de ocupação dos lotes.
Conclusão
A trajetória exposta destaca o papel pioneiro da Rua Marconi no desenvolvimento de padrões que viriam a caracterizar a morfologia contínua e compacta que definiu a maioria das ruas do “Centro Novo”. O exame do conjunto dos edifícios ali construídos deixa claro que muitos dos procedimentos comuns a cada um dos empreendimentos, eram determinados pelas normas estabelecidas pelos instrumentos de regulamentação, em especial o assim chamado “Código Arthur Saboya”. Estes traços comuns revelam, porém, o desenvolvimento de fórmulas muito eficientes no atendimento das demandas que então se formavam para a oferta de espaços comerciais de escritórios de prestadores de serviço. A julgar pelas formas recorrentes de estruturação espacial, de dimensionamento de salas e instalações, de organização dos sistemas de circulação, o conjunto de obras analisadas parece indicar que àquela altura havia sido alcançada uma síntese de eficiência deste produto imobiliário.
O resultado arquitetônico, por sua vez, não respondeu apenas às exigências de remuneração do capital investido e a oferta de produtos correspondentes à uma demanda, mas proporcionou a realização de um conjunto urbanístico-arquitetônico de alta qualidade.
[1]
Planta da Cidade de São Paulo, 1868, atribuída a Carlos Frederico Rath, original pertencente ao Museu Paulista. http://www.arquiamigos.org.br/info/info20/i-1868.htm
[2]
Ato nº 1335, de 12/01/1938
[3]
Ato nº 1335, de 12/01/1938.
[4]
Carrol Willis distingue as diferenças entre os dois paradigmas de verticalização assinalando que enquanto em “Nova York, a cidade das torres, o prestígio advém da altura”, em Chicago a administração municipal estabelece limites de altura gerando uma característica peculiar: grandes edifícios em forma de caixas, atravessadas no centro ou na parte posterior por grandes pátios de luz (Willis, 1995: 64).
[5]
“A assim chamada organização em “T” permitia duas salas privadas, cada uma com janela e uma recepção para uma estenógrafa, arquivos e sala de espera”. (Willis, 1995: 27)
[6]
A este respeito, Willis, faz referência à crua e objetiva afirmação de George Hill, publicada na revista
Architectural Record
, no início do século XX: “O primeiro e principal objetivo de um edifício de escritórios é render o maior retorno possível para seus proprietários, o que significa que ele precisa oferecer o máximo espaço rentável possível no lote, com todas as suas partes inteiramente iluminadas. (George Hill, apud Willis, 1995: 19).
Links e arquivos
Documento Completo do Artigo em PDF
Edifícios relacionados
Edifício São Manuel
Não consta
Barão de Itapetininga s/nº (esq. c/ R. Marconi nº 138) (
21
) Esquina com a Rua Marconi nº 138
indefinido
Terreno Original do Loteamento da Rua Marconi
Marconi 000
1930 a 1939
Galeria de fotos
Utilizamos cookies essenciais e tecnologias semelhantes de acordo com a nossa
Política de Privacidade
e, ao continuar navegando, você concorda com estas condições.
OK